Водогрейные котлы TNOX.e / TNOX.e EN

Трехходовые промышленные отопительные котлы с увеличенным объемом, минимальными выбросами NOx и повышенным КПД
  • давление: от 6 бар
  • мощность: 2500 ÷ 17000 кВт
  • КПД: > 95,0 %

Серия TNOX.e / TNOX.e EN — промышленные теплогенераторы с акцентом на максимальную энергоэффективность
Модельный ряд TNOX.e / TNOX.e EN создан для объектов, где критичны низкие эксплуатационные расходы и стабильный теплопроизводительный режим. Это трехходовые газотрубные агрегаты с увеличенным объемом топочной камеры и улучшенной геометрией теплообмена. Такая конструкция позволяет получить один из самых высоких коэффициентов полезного действия среди промышленных водогрейных котлов TEKO, сохранив высокую тепловую нагрузку без перерасхода топлива.

Котлы рассчитаны на работу в температурном диапазоне от 60 до 110 °C и предназначены для отопительных систем средней и высокой мощности. В зависимости от типа горелочного оборудования агрегаты работают на природном газе, дизельном топливе или мазуте.

Серия TNOX.e EN — решения для проектов с повышенной тепловой нагрузкой, включая городские теплосети, распределённые котельные и промышленную теплогенерацию.
Благодаря модернизированной конструкции теплообменного блока и оптимизированной циркуляции дымовых газов, оборудование обеспечивает быструю отдачу тепла, экономию топлива и снижение эксплуатационных затрат на протяжении всего срока службы.
Сферы применения
Преимущества
Технические характеристики
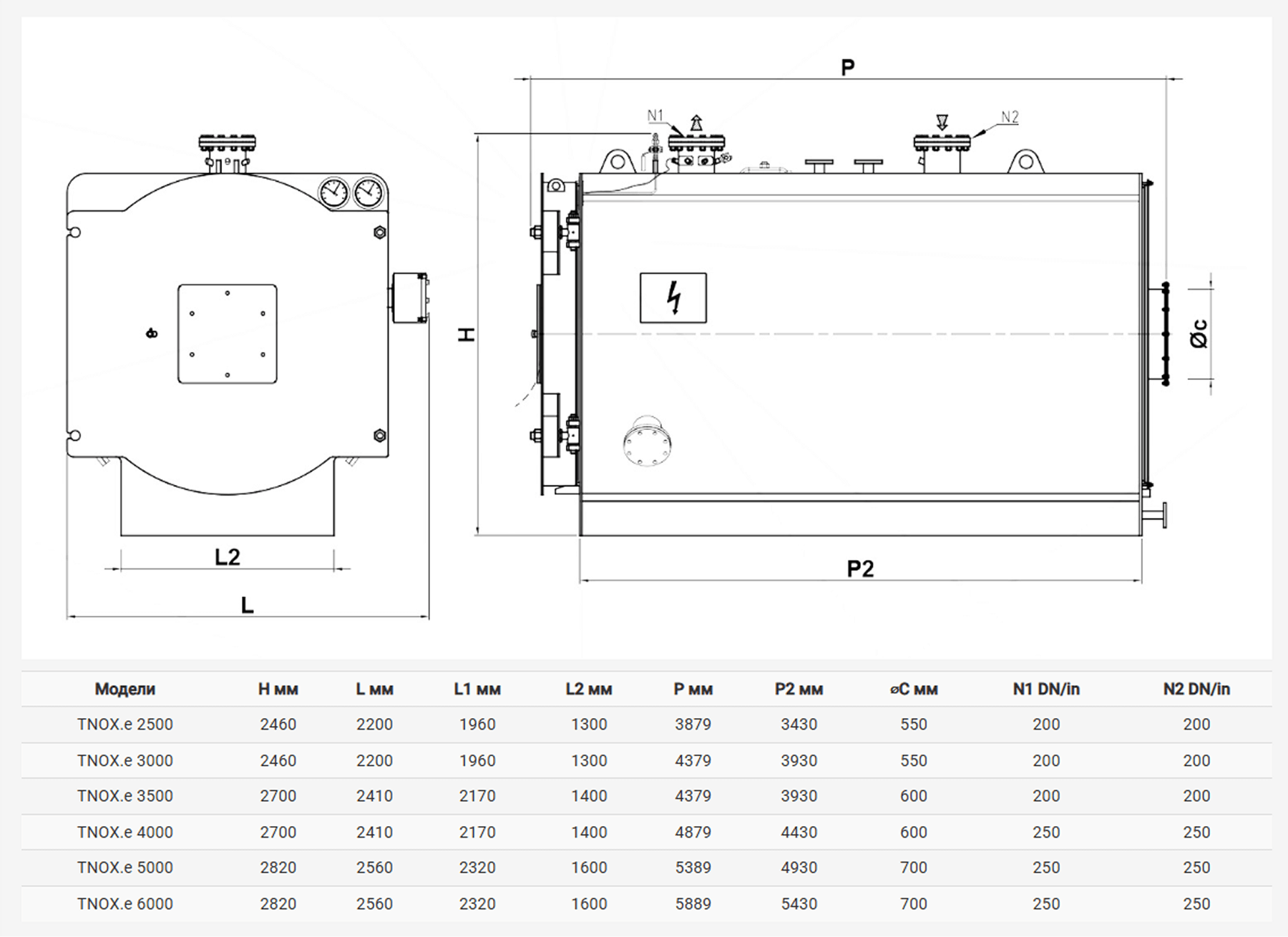
Габаритные размеры

Сферы применения

Центральные отопительные сети городов и поселений
TNOX.e / TNOX.e EN формируют устойчивый тепловой контур для распределённых котельных, обеспечивая стабильный график подачи тепла в течение отопительного сезона.

Промышленные тепловые системы
Котлы подходят для цехов, производственных корпусов и логистических площадок, где требуется прогнозируемый нагрев без остановок технологического процесса.

Теплоснабжение социально-значимых объектов
TEKO обеспечивает поддержание температурных режимов в школах, административных комплексах и объектах муниципальной инфраструктуры.

Медицинские учреждения и больничные комплексы
Серия применяется для отопления и горячего водоснабжения в зданиях с непрерывной нагрузкой и повышенными санитарными требованиями.

Спортивные объекты и центры подготовки
Котлы поддерживают температуру воздуха и воды в спорткомплексах, фитнес-центрах и ледовых аренах, где расход энергии нестабилен.

Обеспечение теплом аквапарков, бассейнов и спа-зон
TNOX.e / TNOX.e EN работают с большими объёмами воды и поддерживают постоянную температуру без перепадов.

Преимущества

Максимальная энергоотдача в промышленном диапазоне
Конструкция теплообменной зоны увеличивает количество утилизируемого тепла — предприятие получает меньше расхода топлива при той же мощности.

Стабильность работы при изменении параметров сети
Большой водяной объём и высокая тепловая инерция защищают систему от колебаний расхода, давления и температуры в пиковые периоды.

Гибкость конфигураций под проект заказчика
Серия TEKO предусматривает широкий выбор вспомогательных узлов и автоматики — от минимального набора до полностью укомплектованной станции.

Контроль безопасности промышленного уровня
Каждый агрегат соответствует жёстким нормам по защите от перегрева, избыточного давления и нештатных режимов — риски для заказчика минимизированы.

Ресурс на длительную эксплуатацию
Усиленные поверхности нагрева, устойчивость к тепловым потерям и инженерная компоновка продлевают срок службы без капитальных ремонтов.

Комфорт в эксплуатации и обслуживание без сложной логистики
TEKO обеспечивает доступность сервисных компонентов и оперативные регламентные работы, что снижает простой оборудования и накладные расходы.

Технические характеристики


Габаритные размеры


Смотрите также